|
|
|
|
05/20/2005. The tile layout plan for the kitchen backsplash. Combination of white ceramic and blue glass tiles.. |
|
|
05/20/2005. The tile layout plan for the entry landing. Porcelain simulated slate tile. |
|
|
05/20/2005. The tile layout plan for the top landing. Porcelain simulated slate tile. |
|
|
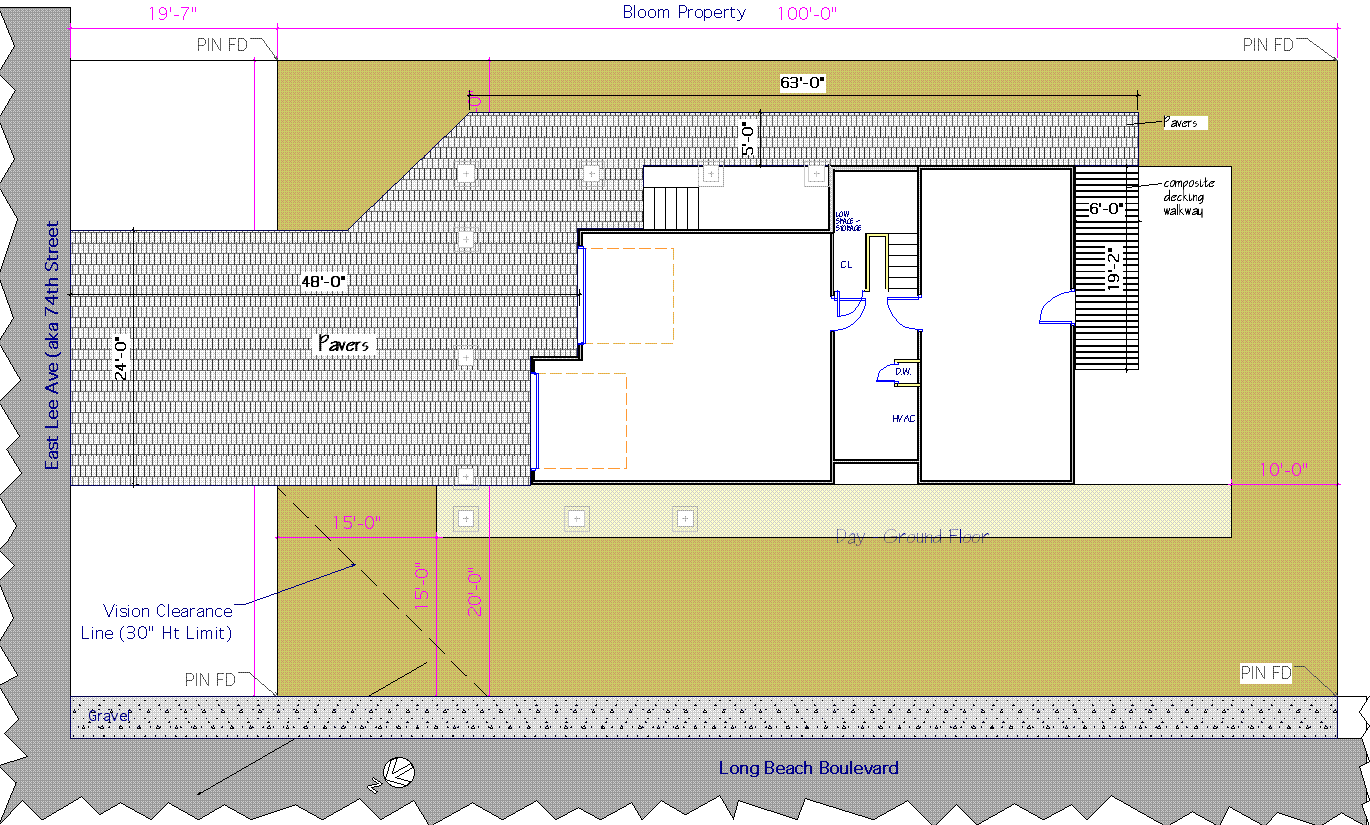
04/14/2005. My revised paving plan. |
|
|
08/04/2004. Architect's latest version. North & west elevations. |
|
|
08/04/2004. Architect's latest version. South & east elevations. |
|
|
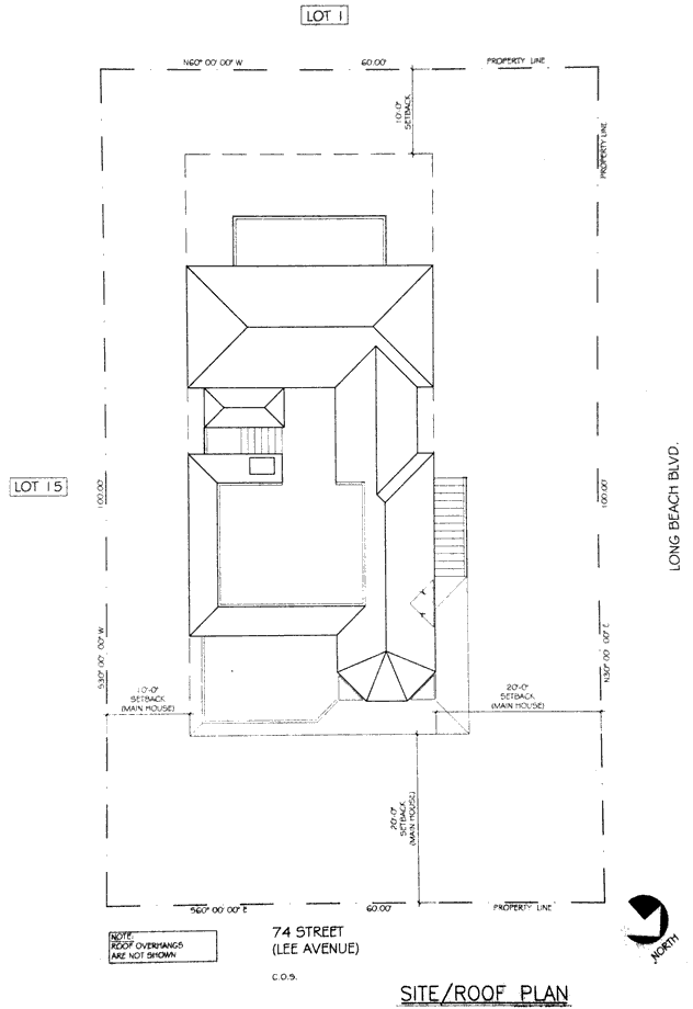
08/04/2004. Architect's latest version. Site/roof plan. |
|
|
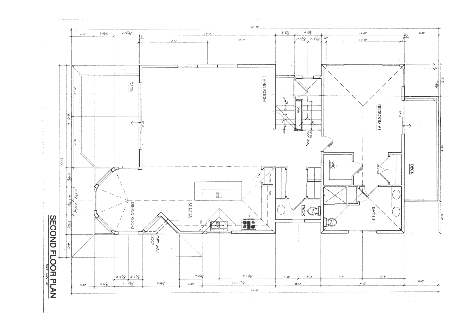
08/04/2004. Architect's latest version. Second floor plan. |
|
|
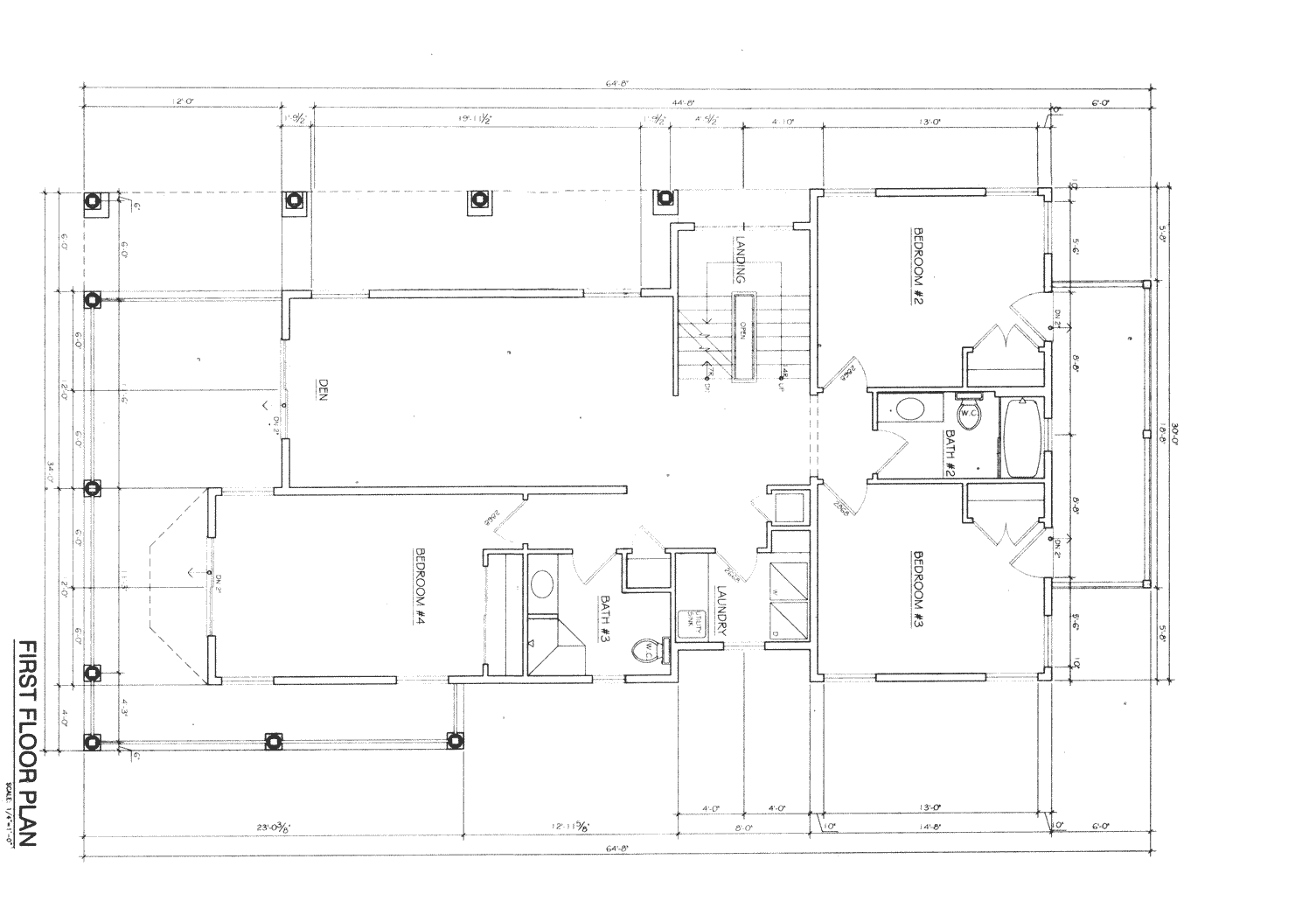
08/04/2004. Architect's latest version. First floor plan. |
|
|
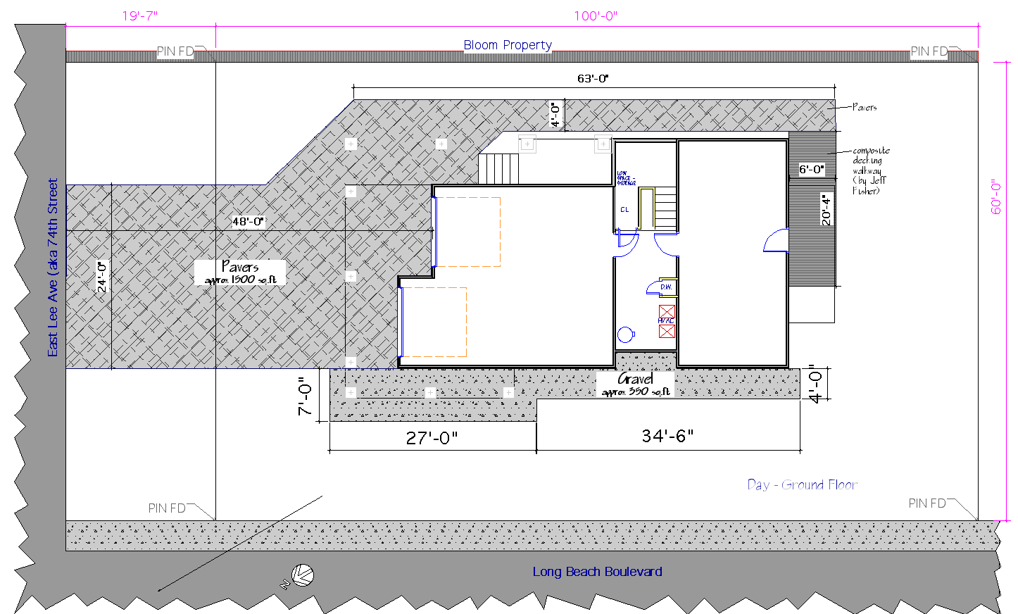
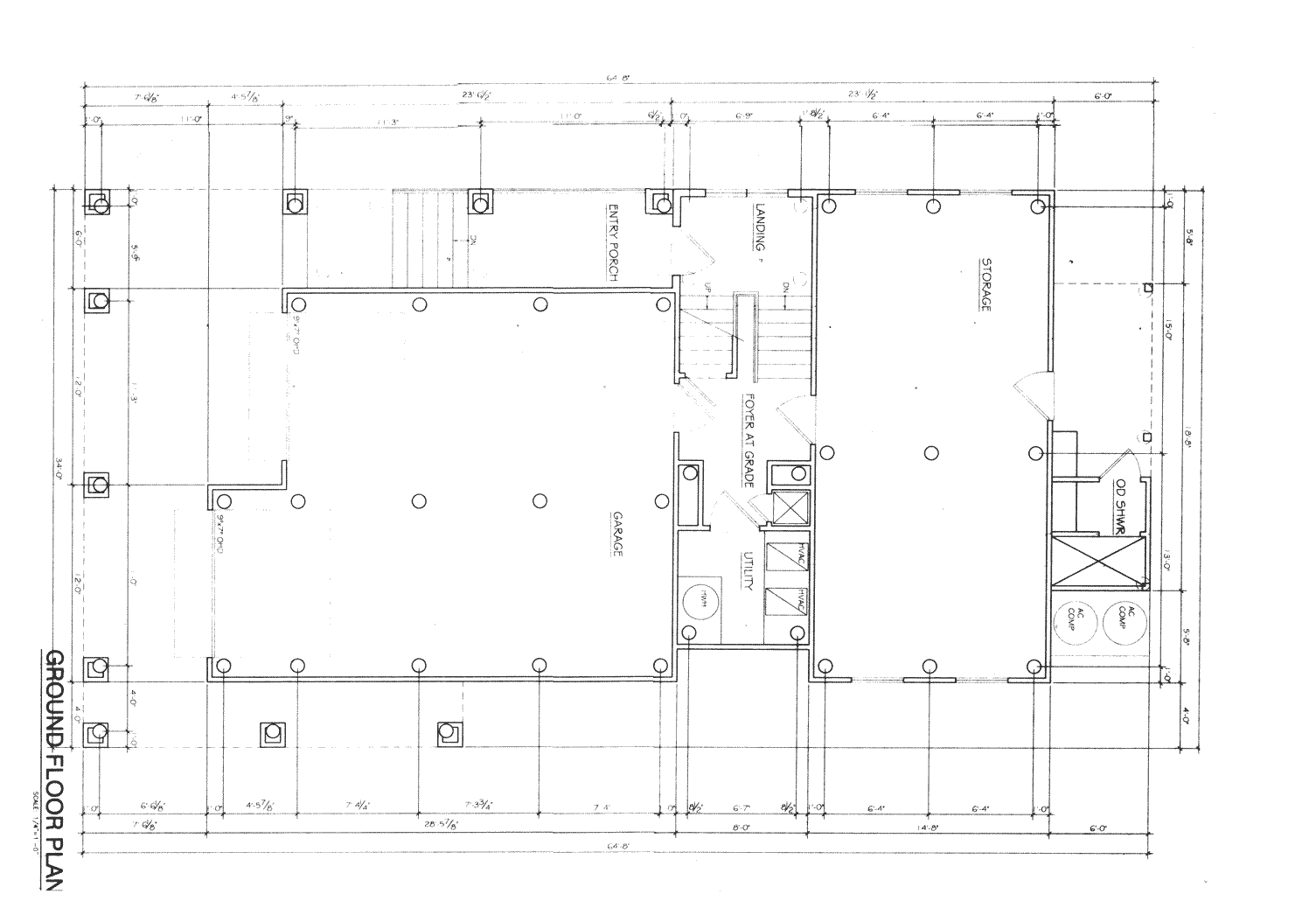
08/04/2004. Architect's latest version. Ground floor plan. |
|
|
08/04/2004. Architect's latest version. Second floor electrical plan. |
|
|
08/04/2004. Architect's latest version. First floor electrical plan. |
|
|
08/04/2004. Architect's latest version. Ground floor electrical plan. |
 |
08/04/2004. Architect's latest version. Building structural section views. |
 |
08/04/2004. Architect's latest version. Typical wall section views. |
 |
08/04/2004. Architect's latest version. Roof structural details. |
 |
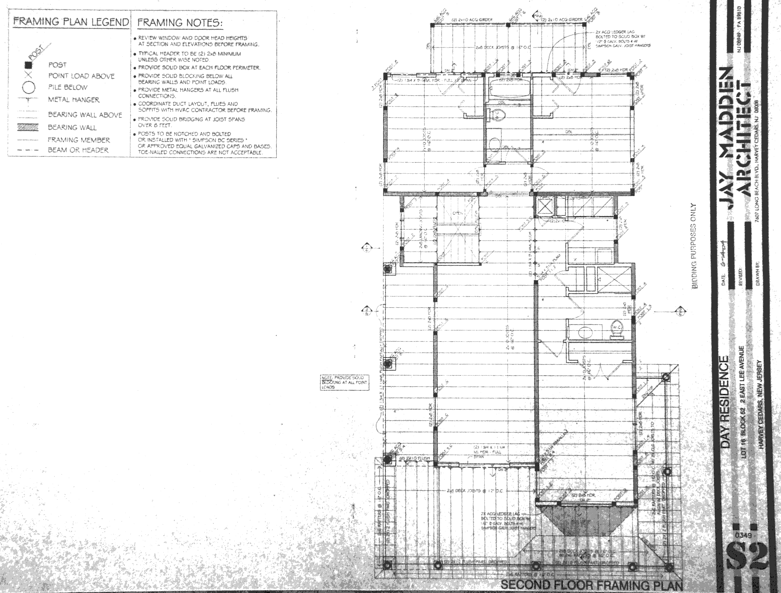
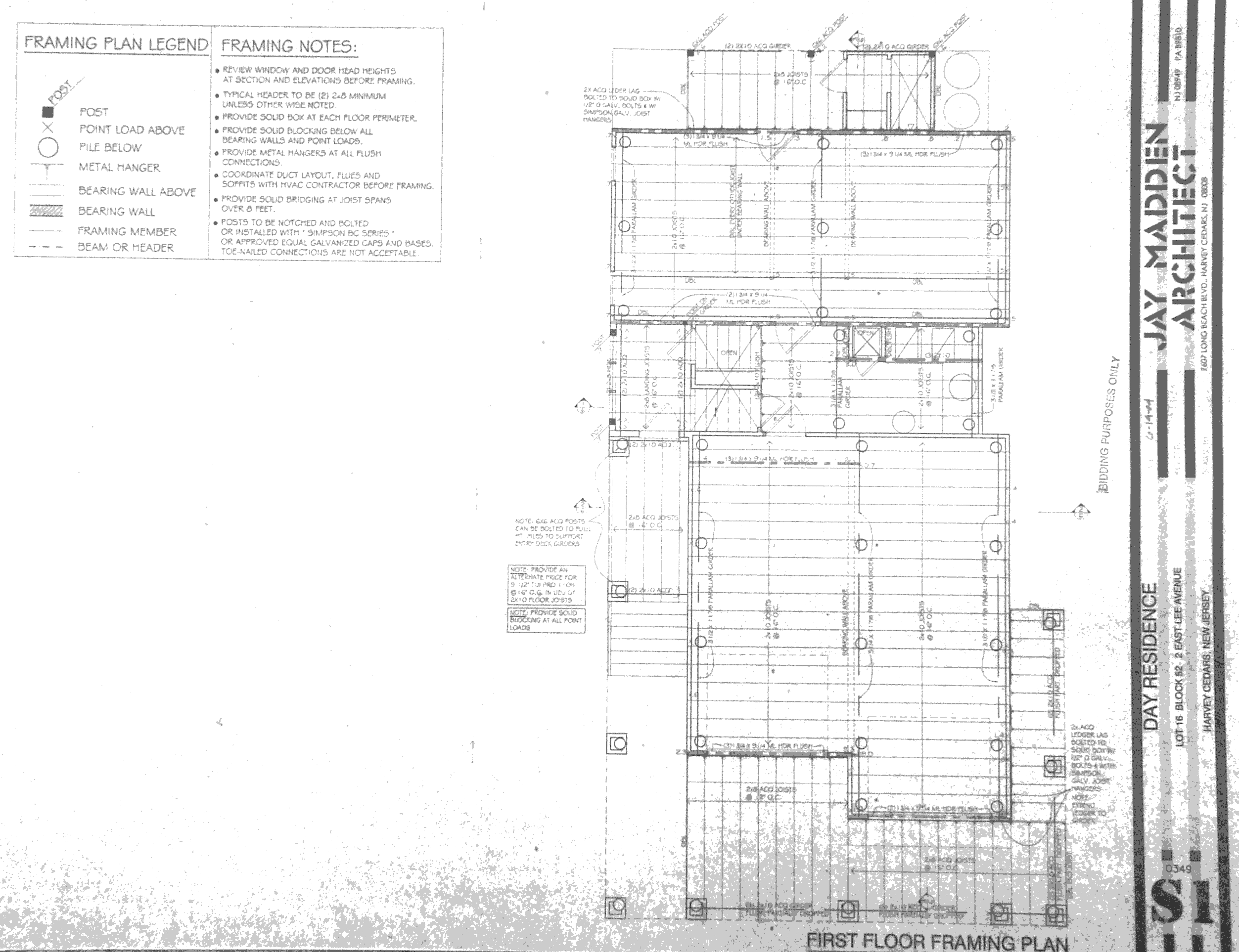
08/04/2004. Architect's latest version. Second floor structural details |
 |
08/04/2004. Architect's latest version. Ground floor structural details |
|
|
07/30/2004. My VectorWorks plan for the landscaping. Just includes pavers and the walkway at this stage. |
 |
04/09/2004. My own CAD version of the north elevation. I'll use this to test many of the trim and finish options. Currently, we're deciding how to best configure the 1st & 2nd floor arches on this side. |
 |
04/07/2004. The revised north (front) elevation. |
 |
04/07/2004. The revised roof and lot plan, now with electrical and other details. |
 |
03/15/2004. Animation of house exterior. Lacks some windows, railings & roofs. Better animations will come soon. |
 |
03/14/2004. First version of the electrical plan (Second Floor) |
 |
03/14/2004. First version of the electrical plan (First Floor) |
 |
03/14/2004. First version of the electrical plan (Lower Level) |
 |
02/27/2004. The second version of the second floor plan. |
 |
02/27/2004. The second version of the first floor plan. |
 |
02/27/2004. The second version of the lower level plan. |
 |
02/27/2004. The east (ocean side)elevation , shown for the first time. Entry stair is open design with railings. Stair tower windows will change. |
|
|
02/27/2004. The south (rear) elevation |
 |
02/27/2004. The west (facing the Boulevard) elevation has changed significantly in a month. |
 |
02/15/2004. Lee Avenue lot, current setbacks and existing house, which clearly could not be built today in the same place. |
 |
02/15/2004. Lee Avenue lot and new house drawn within setbacks. It must be about 15 ft farther from Lee Ave than existing house. |
 |
02/02/2004. North elevation (facing Lee Ave). From Jay Madden design proposed 1/31/2004 (slightly revised 2/27) |
 |
02/02/2004. West side elevation (facing Long Beach Boulevard). I've made edits to bath windows and mid-level porch based on our discussion. |
 |
02/02/2004. My Vectorworks model is taking shape. Here is a view from the northeast. |
|
|
01/31/2004. Roof lines and plot plan. (Jay Madden design) |
|
|
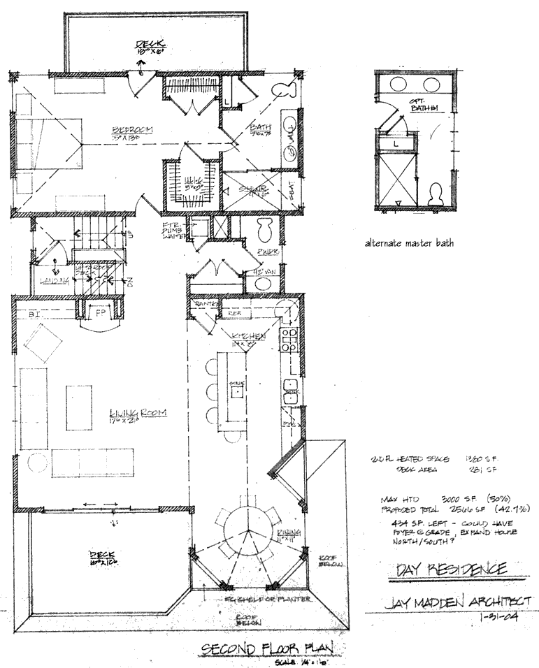
01/31/2004. Second floor plan. (Jay Madden design) |
 |
01/31/2004. First floor plan. (Jay Madden design) |
|
|
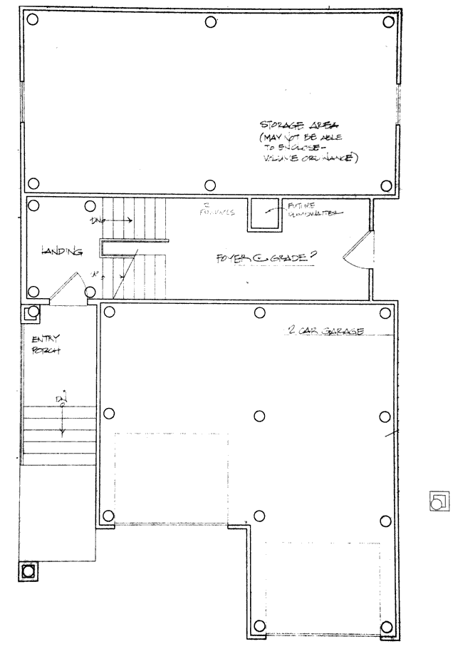
01/31/2004. Ground level plan. (Jay Madden design) |